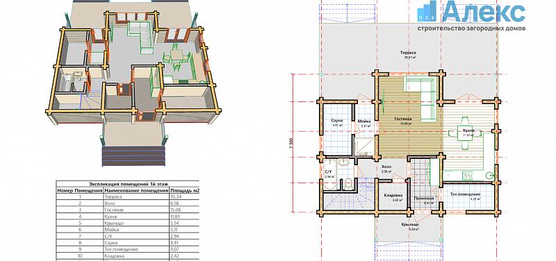
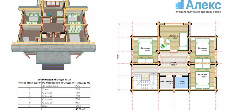
Дом-баня из бруса для постоянного проживания

  • Материал стен Профилированный брус
  • Площадь 146,46 м2
  • Этажей 2
  • Комнат 4
  • Гараж\Навес без гаража
  • Площаль кухни 11,83 м2
  • Срок строительства 30 дней
  • Цена "Под кровлю" 41000 ₽/кв.м

Задать вопрос

Описание

✅ Большая терраса — одна из самых просторных среди проектов такого формата. Идеальна как зона отдыха, летняя гостиная или обеденная зона.
✅ Отдельная зона бани: парная, душевая, с/у — всё необходимое для SPA-процедур прямо дома, с выходом на террасу.
✅ Четыре компактные, но светлые спальни. Одна из них увеличенной площади для размещения рабочей зоны. 
✅ Техническое помещение и 2 кладовые — всё инженерное оборудование вынесено из жилых зон, а вещи — спрятаны в отдельные ниши.
✅ Просторная кухня-гостиная — разделена на функциональные зоны, но объединена в одно светлое пространство с выходом на террасу.

Технические характеристики:
  • Стены — профилированный брус 190×140 мм (рабочая высота 130 мм)
  • Адаптирован под IВ климатический район: расчётная температура –35°C, снеговая нагрузка 320 кг/м²
  • Фундамент — свайный (точное количество и расположение — после геологии)
  • Крыша — двускатная, утеплённая, площадь кровли 158,74 м²
Для кого этот дом?
— Для семьи, которая хочет максимум функциональности при компактных габаритах.
— Для тех, кто ценит баню, но не готов строить отдельное здание.
— Для тех, кто ищет готовый проект под ключ с продуманной логикой перемещений и хранения.

Комплектация «тёплый контур» включает:
Фундамент, коробку из профилированного бруса, кровлю, утепление перегородок, монтаж окон и дверей. Готовый каркас — без скрытых платежей и с гарантией 5 лет.

Комплектация

Технический выезд на объект
  • Привязка обьекта строительства на участке, составление Акта.
  • Согласование подьездных путей.
  • Нивелировка места установки фундамента (при необходимости).
  • Подбор оптимального решения по фундаменту.
Ленточный фундамент на буронабивных сваях
  • Сечение ростверка 300*700м. Буронабивные сваи диаметром 250мм.  
  • Удаление плодородного слоя
  • Песок средней фракции (при необходимости).
  • Опалубка из доски или ламинированной фанеры. Полиэтилен предусмотрен.
  • Арматура вязанная в каркас. Используем только металлическую арматуру.
  • Прием скрытых работ у бригады техническим специалистом по чек листу. Сдача заказчику.
  • Окончательная сдача фундамента техническим специалистом по Чек листу.

Другой тип фундамента
  • По желанию заказчика произведем строительные работы любого типа фундамента
Другой материал стен
  • Наша компания подберет под вас материал стен по вашим требованиям и бюджету.
  • Производим и строим из 6 вариантов бруса, от эконом до элит; Бревно РР, Оцилиндрованное бревно.
  • Строим из кирпича, газоблока, пеноблока.  Варианты отделки разные. Каркасные дома.
  • Любой проект на сайте можно воплотить в любом материале.
Лаги пола и перекрытия
  • Усиленные из бруса 200*100 мм. Установка врезкой. Конопатка межвенцовым уплотнителем.
Брус профилированный ЕВ
  • Заготовка леса осуществляется в северных районах Пермского края.
  • Производство находится в Перми.
  • Крепление, стягивание домокомплекта производится шкантами и специальными соединительными шурупами "Узел сила" Тип сборки - теплый угол. Межвенцовый уплотнитель джут. 
  • Окончательная сдача коробки дома производится техническим специалистом по Чек листу.
Рабочий проект коробки дома
  • Исходные данные материала, строительные конструкции
  • Характеристика площади строительства
  • Архитектурно-планировочные решения проектируемого объекта
  • Спецификация на производство устройство стен
  • Разрезы, развертка стен, раскладка балок
Подкладочная доска
  • Во избежании гниения первого венца мы используем подкладочную доску.
  • Производим обработку подкладочной доски.
  • Производим работы по гидроизоляции фундамента.
Лестница черновая строительного качества.
  • Служит для удобства выполнения строительных работ. Однопролетная.
Рабочий проект кровли
  • Разработанные типовые технологические карты по каждому узлу.
  • Характеристика площади кровли.
  • Архитектурное решение. Раскладка стропил.
Сборка и Материал кровли
  • Покрытие – металлочерепица полиэстер, толщиной 0,45 мм.  Стропила – доска 50*200 мм(в зависимости от проекта). Обрешетка  с шагом под волну. 
  • Предусмотрено устройство вентиляционного зазора, с устройством гидроизоляции премиум класса из супердиффузионной мембраны. Утепление узла соединения кровли и фронтонов. Материалы компании  ROCKWOOL.
  • Предусмотрена установка карнизных планок и крючков водосточной системы. Ветровые планки привозим с кровлей (рекомендуем устанавливать вместе с подшивой).
  • Крепежные элементы в зависимости от проекта.
Другой материал покрытия кровли
  • Наша компания подберет под вас любое кровельное покрытие по вашим требованиям и бюджету.
  • Любой проект на сайте можно воплотить под вас.
Устройство полов с утеплением
  • Устройство поддерживающей обрешетки из доски 100*25
  • Установка влаговетрозащиты 
  • Укладка утеплителя между балок толщиной 200 мм.
  • Установка пароизоляции
  • Укладка ходовых досок
Утепление кровли
  • Устройство поддерживающей обрешетки из доски 100*25
  • Установка пароизоляции, на данном этапе без проклейки
  • Укладка утеплителя между балок толщиной 200 мм.
Проклейка пароизоляции
  • Проклейка пароизоляции выполняется сразу или отдельно при установлении теплой погоды
Устройство перекрытий с утеплением
  • Устройство поддерживающей обрешетки из доски 100*25
  • Установка пароизоляции
  • Укладка утеплителя между балок толщиной 100 мм.
  • Установка пароизоляции
  • Укладка ходовых досок
Подготовка
  • Выезд специалиста на замер
  • Формирование спецификации на обсадные коробки
  • Согласование типа окон и их внешнего вида
  • Формирование спецификации на производство окон
Обсадные коробки
  • Установка обсадных коробок
  • Мы можем предложить несколько вариантов внешнго вида и качества изготовления обсадных коробок
  • звоните чтобы выяснить подробности
Окна
  • Установка окон
  • Первичная регулировка
  • Герметизация мест соединений
Наличиники
  • Установка наличников
  • При установке мы учитываем ваше пожелания к внешнему виду
Технический выезд на объект
  • Привязка обьекта строительства на участке, составление Акта.
  • Согласование подьездных путей.
  • Нивелировка места установки фундамента (при необходимости).
  • Подбор оптимального решения по фундаменту.
Ленточный фундамент на буронабивных сваях
  • Сечение ростверка 300*700м. Буронабивные сваи диаметром 250мм.  
  • Удаление плодородного слоя
  • Песок средней фракции (при необходимости).
  • Опалубка из доски или ламинированной фанеры. Полиэтилен предусмотрен.
  • Арматура вязанная в каркас. Используем только металлическую арматуру.
  • Прием скрытых работ у бригады техническим специалистом по чек листу. Сдача заказчику.
  • Окончательная сдача фундамента техническим специалистом по Чек листу.

Другой тип фундамента
  • По желанию заказчика произведем строительные работы любого типа фундамента
Рабочий проект кровли
  • Разработанные типовые технологические карты по каждому узлу.
  • Характеристика площади кровли.
  • Архитектурное решение. Раскладка стропил.
Сборка и Материал кровли
  • Покрытие – металлочерепица полиэстер, толщиной 0,45 мм.  Стропила – доска 50*200 мм(в зависимости от проекта). Обрешетка  с шагом под волну. 
  • Предусмотрено устройство вентиляционного зазора, с устройством гидроизоляции премиум класса из супердиффузионной мембраны. Утепление узла соединения кровли и фронтонов. Материалы компании  ROCKWOOL.
  • Предусмотрена установка карнизных планок и крючков водосточной системы. Ветровые планки привозим с кровлей (рекомендуем устанавливать вместе с подшивой).
  • Крепежные элементы в зависимости от проекта.
Другой материал покрытия кровли
  • Наша компания подберет под вас любое кровельное покрытие по вашим требованиям и бюджету.
  • Любой проект на сайте можно воплотить под вас.
Рабочий проект коробки дома
  • Исходные данные материала, строительные конструкции
  • Характеристика площади строительства
  • Архитектурно-планировочные решения проектируемого объекта
  • Спецификация на производство устройство стен
  • Разрезы, развертка стен, раскладка балок
Подкладочная доска
  • Во избежании гниения первого венца мы используем подкладочную доску.
  • Производим обработку подкладочной доски.
  • Производим работы по гидроизоляции фундамента.
Клееный брус
  • Заготовка леса осуществляется в северных районах Пермского края.
  • Производство находится в Перми.
  • Крепление, стягивание домокомплекта производится шкантами и специальными соединительными шурупами "Узел сила". Межвенцовый уплотнитель джут. 
  • Окончательная сдача коробки дома производится техническим специалистом по Чек листу.
Лаги пола и перекрытия
  • Усиленные из бруса 200*100 мм. Установка врезкой. Конопатка межвенцовым уплотнителем.
Лестница черновая строительного качества.
  • Служит для удобства выполнения строительных работ. Однопролетная.
Другой материал стен
  • Наша компания подберет под вас материал стен по вашим требованиям и бюджету.
  • Производим и строим из 6 вариантов бруса, от эконом до элит; Бревно РР, Оцилиндрованное бревно.
  • Строим из кирпича, газоблока, пеноблока.  Варианты отделки разные. Каркасные дома.
  • Любой проект на сайте можно воплотить в любом материале.
Окна
  • Установка окон
  • Первичная регулировка
  • Герметизация мест соединений
Обсадные коробки
  • Установка обсадных коробок
  • Мы можем предложить несколько вариантов внешнго вида и качества изготовления обсадных коробок
  • звоните чтобы выяснить подробности
Подготовка
  • Выезд специалиста на замер
  • Формирование спецификации на обсадные коробки
  • Согласование типа окон и их внешнего вида
  • Формирование спецификации на производство окон
Обсадные коробки
  • Установка обсадных коробок
  • Мы можем предложить несколько вариантов внешнго вида и качества изготовления обсадных коробок
  • звоните чтобы выяснить подробности
Устройство полов с утеплением
  • Устройство поддерживающей обрешетки из доски 100*25
  • Установка влаговетрозащиты 
  • Укладка утеплителя между балок толщиной 200 мм.
  • Установка пароизоляции
  • Укладка ходовых досок
Устройство перекрытий с утеплением
  • Устройство поддерживающей обрешетки из доски 100*25
  • Установка пароизоляции
  • Укладка утеплителя между балок толщиной 100 мм.
  • Установка пароизоляции
  • Укладка ходовых досок
Утепление кровли
  • Устройство поддерживающей обрешетки из доски 100*25
  • Установка пароизоляции, на данном этапе без проклейки
  • Укладка утеплителя между балок толщиной 200 мм.
Проклейка пароизоляции
  • Проклейка пароизоляции выполняется сразу или отдельно при установлении теплой погоды
Технический выезд на объект
  • Привязка обьекта строительства на участке, составление Акта.
  • Согласование подьездных путей.
  • Нивелировка места установки фундамента (при необходимости).
  • Подбор оптимального решения по фундаменту.
Ленточный фундамент на буронабивных сваях
  • Сечение ростверка 300*700м. Буронабивные сваи диаметром 250мм.  
  • Удаление плодородного слоя
  • Песок средней фракции (при необходимости).
  • Опалубка из доски или ламинированной фанеры. Полиэтилен предусмотрен.
  • Арматура вязанная в каркас. Используем только металлическую арматуру.
  • Прием скрытых работ у бригады техническим специалистом по чек листу. Сдача заказчику.
  • Окончательная сдача фундамента техническим специалистом по Чек листу.

Другой тип фундамента
  • По желанию заказчика произведем строительные работы любого типа фундамента
Рабочий проект кровли
  • Разработанные типовые технологические карты по каждому узлу.
  • Характеристика площади кровли.
  • Архитектурное решение. Раскладка стропил.
Сборка и Материал кровли
  • Покрытие – металлочерепица полиэстер, толщиной 0,45 мм.  Стропила – доска 50*200 мм(в зависимости от проекта). Обрешетка  с шагом под волну. 
  • Предусмотрено устройство вентиляционного зазора, с устройством гидроизоляции премиум класса из супердиффузионной мембраны. Утепление узла соединения кровли и фронтонов. Материалы компании  ROCKWOOL.
  • Предусмотрена установка карнизных планок и крючков водосточной системы. Ветровые планки привозим с кровлей (рекомендуем устанавливать вместе с подшивой).
  • Крепежные элементы в зависимости от проекта.
Другой материал покрытия кровли
  • Наша компания подберет под вас любое кровельное покрытие по вашим требованиям и бюджету.
  • Любой проект на сайте можно воплотить под вас.
Рабочий проект коробки дома
  • Исходные данные материала, строительные конструкции
  • Характеристика площади строительства
  • Архитектурно-планировочные решения проектируемого объекта
  • Спецификация на производство устройство стен
  • Разрезы, развертка стен, раскладка балок
Подкладочная доска
  • Во избежании гниения первого венца мы используем подкладочную доску.
  • Производим обработку подкладочной доски.
  • Производим работы по гидроизоляции фундамента.
Профилированный брус камерной сушки
  • Заготовка леса осуществляется в северных районах Пермского края.
  • Производство находится в Перми.
  • Крепление, стягивание домокомплекта производится шкантами и специальными соединительными шурупами "Узел сила"  Межвенцовый уплотнитель джут. 
  • Окончательная сдача коробки дома производится техническим специалистом по Чек листу.
Лаги пола и перекрытия
  • Усиленные из бруса 200*100 мм. Установка врезкой. Конопатка межвенцовым уплотнителем.
Лестница черновая строительного качества.
  • Служит для удобства выполнения строительных работ. Однопролетная.
Другой материал стен
  • Наша компания подберет под вас материал стен по вашим требованиям и бюджету.
  • Производим и строим из 6 вариантов бруса, от эконом до элит; Бревно РР, Оцилиндрованное бревно.
  • Строим из кирпича, газоблока, пеноблока.  Варианты отделки разные. Каркасные дома.
  • Любой проект на сайте можно воплотить в любом материале.
Подготовка
  • Выезд специалиста на замер
  • Формирование спецификации на обсадные коробки
  • Согласование типа окон и их внешнего вида
  • Формирование спецификации на производство окон
Обсадные коробки
  • Установка обсадных коробок
  • Мы можем предложить несколько вариантов внешнго вида и качества изготовления обсадных коробок
  • звоните чтобы выяснить подробности
Окна
  • Установка окон
  • Первичная регулировка
  • Герметизация мест соединений
Наличиники
  • Установка наличников
  • При установке мы учитываем ваше пожелания к внешнему виду
Устройство перекрытий с утеплением
  • Устройство поддерживающей обрешетки из доски 100*25
  • Установка пароизоляции
  • Укладка утеплителя между балок толщиной 100 мм.
  • Установка пароизоляции
  • Укладка ходовых досок
Устройство полов с утеплением
  • Устройство поддерживающей обрешетки из доски 100*25
  • Установка влаговетрозащиты 
  • Укладка утеплителя между балок толщиной 200 мм.
  • Установка пароизоляции
  • Укладка ходовых досок
Утепление кровли
  • Устройство поддерживающей обрешетки из доски 100*25
  • Установка пароизоляции, на данном этапе без проклейки
  • Укладка утеплителя между балок толщиной 200 мм.
Проклейка пароизоляции
  • Проклейка пароизоляции выполняется сразу или отдельно при установлении теплой погоды
Технический выезд на объект
  • Привязка обьекта строительства на участке, составление Акта.
  • Согласование подьездных путей.
  • Нивелировка места установки фундамента (при необходимости).
  • Подбор оптимального решения по фундаменту.
Ленточный фундамент на буронабивных сваях
  • Сечение ростверка 300*700м. Буронабивные сваи диаметром 250мм.  
  • Удаление плодородного слоя
  • Песок средней фракции (при необходимости).
  • Опалубка из доски или ламинированной фанеры. Полиэтилен предусмотрен.
  • Арматура вязанная в каркас. Используем только металлическую арматуру.
  • Прием скрытых работ у бригады техническим специалистом по чек листу. Сдача заказчику.
  • Окончательная сдача фундамента техническим специалистом по Чек листу.

Другой тип фундамента
  • По желанию заказчика произведем строительные работы любого типа фундамента
Рабочий проект коробки дома
  • Исходные данные материала, строительные конструкции
  • Характеристика площади строительства
  • Архитектурно-планировочные решения проектируемого объекта
  • Спецификация на производство устройство стен
  • Разрезы, развертка стен, раскладка балок
Подкладочная доска
  • Во избежании гниения первого венца мы используем подкладочную доску.
  • Производим обработку подкладочной доски.
  • Производим работы по гидроизоляции фундамента.
Брус камерной сушки 1 сорт
  • Заготовка леса осуществляется в северных районах Пермского края.
  • Производство находится в Перми.
  • Крепление, стягивание домокомплекта производится шкантами и специальными соединительными шурупами "Узел сила" . Межвенцовый уплотнитель джут. 
  • Окончательная сдача коробки дома производится техническим специалистом по Чек листу.
Лаги пола и перекрытия
  • Усиленные из бруса 200*100 мм. Установка врезкой. Конопатка межвенцовым уплотнителем.
Лестница черновая строительного качества.
  • Служит для удобства выполнения строительных работ. Однопролетная.
Другой материал стен
  • Наша компания подберет под вас материал стен по вашим требованиям и бюджету.
  • Производим и строим из 6 вариантов бруса, от эконом до элит; Бревно РР, Оцилиндрованное бревно.
  • Строим из кирпича, газоблока, пеноблока.  Варианты отделки разные. Каркасные дома.
  • Любой проект на сайте можно воплотить в любом материале.
Рабочий проект кровли
  • Разработанные типовые технологические карты по каждому узлу.
  • Характеристика площади кровли.
  • Архитектурное решение. Раскладка стропил.
Сборка и Материал кровли
  • Покрытие – металлочерепица полиэстер, толщиной 0,45 мм.  Стропила – доска 50*200 мм(в зависимости от проекта). Обрешетка  с шагом под волну. 
  • Предусмотрено устройство вентиляционного зазора, с устройством гидроизоляции премиум класса из супердиффузионной мембраны. Утепление узла соединения кровли и фронтонов. Материалы компании  ROCKWOOL.
  • Предусмотрена установка карнизных планок и крючков водосточной системы. Ветровые планки привозим с кровлей (рекомендуем устанавливать вместе с подшивой).
  • Крепежные элементы в зависимости от проекта.
Другой материал покрытия кровли
  • Наша компания подберет под вас любое кровельное покрытие по вашим требованиям и бюджету.
  • Любой проект на сайте можно воплотить под вас.
Подготовка
  • Выезд специалиста на замер
  • Формирование спецификации на обсадные коробки
  • Согласование типа окон и их внешнего вида
  • Формирование спецификации на производство окон
Обсадные коробки
  • Установка обсадных коробок
  • Мы можем предложить несколько вариантов внешнго вида и качества изготовления обсадных коробок
  • звоните чтобы выяснить подробности
Окна
  • Установка окон
  • Первичная регулировка
  • Герметизация мест соединений
Наличиники
  • Установка наличников
  • При установке мы учитываем ваше пожелания к внешнему виду
Устройство полов с утеплением
  • Устройство поддерживающей обрешетки из доски 100*25
  • Установка влаговетрозащиты 
  • Укладка утеплителя между балок толщиной 200 мм.
  • Установка пароизоляции
  • Укладка ходовых досок
Устройство перекрытий с утеплением
  • Устройство поддерживающей обрешетки из доски 100*25
  • Установка пароизоляции
  • Укладка утеплителя между балок толщиной 100 мм.
  • Установка пароизоляции
  • Укладка ходовых досок
Утепление кровли
  • Устройство поддерживающей обрешетки из доски 100*25
  • Установка пароизоляции, на данном этапе без проклейки
  • Укладка утеплителя между балок толщиной 200 мм.
Проклейка пароизоляции
  • Проклейка пароизоляции выполняется сразу или отдельно при установлении теплой погоды